Tìm hiểu cấu tạo của trạm chuyển mẫu EWS - hãng Aerocom
03/01/2025Bài viết này, chúng ta sẽ cùng tìm hiểu về cấu tạo của trạm chuyển mẫu EWS của hãng Aerocom. Hi vọng những kiến thức mà chúng ta cùng tìm hiểu được sẽ củng cố thêm kiến thức cơ bản cho mọi người về hệ thống chuyển mẫu tự động, đang được ứng dụng trong rất nhiều lĩnh vực hiện nay.
1. Thông tin chung
Đối với tất cả các trạm chuyển mẫu hiện nay, chúng được sử dụng chung bo mạch điều khiển. Tùy theo các loại trạm mà cơ cấu hoạt động của chúng sẽ khác một chút. Cho nên bài viết sẽ không nhắc lại kiến thức này. Các bạn hãy xem lại bài viết: Tìm hiểu cách đăng nhập và cài đặt thông số trạm chuyển mẫu của hãng Aerocom để củng cố lại kiến thức nhé.
2. Mô tả trạm chuyển mẫu
Trạm chuyển mẫu EWS được lắp đặt làm trạm cuối trong hệ thống chuyển mẫu. Bởi vì chúng có cơ cấu hoạt động khác với trạm thông. Do đó, cách nhận và gửi hộp chuyển của trạm cũng khác một chút so với các trạm khác.

2.1 Mô tả đèn tín hiệu
| Màu sắc | Chỉ thị | Kí tự | Chế độ | Mô tả |
| Màu đỏ | Đèn báo lỗi | Bật | Trạm chuyển mẫu bị lỗi, không thể gửi và nhận | |
| Chớp | Hệ thống bị lỗi không thể gửi và nhận | |||
| Màu vàng | Đèn báo bận | Tắt | Hệ thống sẵn sàng | |
| Bật | Hệ thống bận, hộp chuyển đang gửi đi trong hệ thống | |||
| Màu xanh | Đèn báo gửi | Bật | Điểm đến chính xác, hộp chuyển được chấp nhận | |
| Màu xanh lam | Tín hiệu báo đến | Chớp | Đèn và chuông hoạt động |
2.2 Hướng dẫn sử dụng trạm:

Các thao tác gửi hộp chuyển mẫu cơ bản đều giống nhau đối với tất cả các trạm, nhưng mỗi trạm sẽ khác nhau một chút.
Thao tác gửi hộp chuyển:
Thao tác 1: Trên bàn phím trạm (1) nhập số trạm cần gửi đến. (Tra cứu điểm đến trên danh sách trạm). Khi nhập số trạm cần gửi đến, màn hình sẽ hiển thị tên của các khoa phòng tương ứng như trong danh sách trạm.
Thao tác 2: Bỏ hộp chuyển vào họng gửi (2) và không cần thao tác gì nữa.
Thao tác nhận hộp chuyển:
Trạm nhận hộp chuyển một cách tự động mà không cần bất cứ thao tác nào của người dùng.
2.3 Mô tả đóng/ mở trạm

Chúng ta xoay theo chiều mô tả để đóng/mở chốt. Sau đó, kéo ra để mở cửa hoặc đẩy vào để đóng cửa.
3. Cấu tạo bên trong trạm

| Stt | Mô tả |
| 1 | Họng gửi hộp chuyển |
| 2, 2' | Cảm biến quang (nhận dạng hộp chuyển khi được đặt vào hoặc khi hộp chuyển đi ngang qua) |
| 3 | Họng nhận hộp chuyển |
| 4 | Bo mạch điều khiển (quản lý và tương tác dữ liệu với bo mạch chủ) |
| 5 | Đầu cắm cáp nguồn |
| 6 | Thân vỏ trạm (được làm bằng kim loại và sơn tĩnh điện) |
| 7 | Cảm biến từ (nhận dạng đúng các điểm dừng khi ống S xoay) |
| 8 | Động cơ (tạo ra lực kéo để xoay ống S) |
| 9 | Dây curoa (truyền tải lực kéo đến ống S) |
| 10 | Ống S (khớp xoay) |
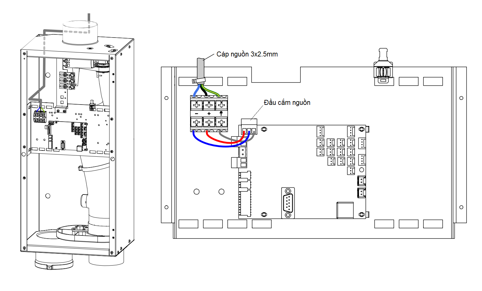
4. Hướng dẫn đấu nối cáp nguồn và cáp tín hiệu
Để đấu nối cáp gọn gàng và thẩm mỹ và đúng kĩ thuật , chúng ta chú ý các hình ảnh bên dưới nhé.

Hình 1: Đấu nối cáp nguồn

Hình 2: Đấu nối cáp tín hiệu
5. Kết bài:
Trạm chuyển mẫu EWS là một trong những loại trạm được sử dụng nhiều trong các hệ thống được lắp đặt vì chúng có tín thẩm mỹ cao, cấu tạo đơn giản và dễ dàng bảo trì. Hi vọng những kiến thức trên sẽ giúp cho quý anh chị một phần nào đó khi đang là người vận hành, nhân viên kĩ thuật và những người ham học hỏi nhé.
Quý anh chị có thắc mắc hãy để lại bình luận trên fanpage nhé: Hệ thống chuyển mẫu tự động